




SmartShed geisoleerde tuinkantoor Kampas
We houden je op de hoogte
Dit product wordt gratis bij je thuis bezorgd
Maak een afspraak in ons Azalp Experience Center
Vul het product aan met de door ons aanbevolen accessoires. We leggen je keurig uit per accessoire wat voor jou de meerwaarde kan zijn.
- Inclusief geïmpregneerde funderingsbalken
- Standaard volledig geïsoleerde wanden
- Premium kwaliteit
- Modern design met unieke Rhombusprofiel wanden
- Gemaakt van vurenhout dus een behandeling met een beits of lak wordt sterk aangeraden
- Exclusief vloer die bijbesteld kan worden bij “product zelf samenstellen”
Azalp tuinkantoor Kampas biedt een extra leefruimte in je tuin. We hebben het dan wel tuinkantoor genoemd, maar dit model is ook zeer geschikt als hobbyruimte, poolhouse, buitenwoonkamer, atelier of guest house. De opties zijn eindeloos! De wanden bestaan uit een speciaal verticaal design profiel, wat zorgt voor een strakke en moderne look and feel.
Om er een comfortabel leefruimte te creëren in alle seizoenen, zijn de wanden standaard geïsoleerd met 42mm isolatiewol. Dit zorgt voor een aangenamere temperatuur in de winter en de zomer. De deur met 24mm dik glas en vier ramen van 80 x 54 cm met isoglas zorgen voor extra natuurlijke lichtinval.
Geïsoleerde wanden
De wanden van de Kampas zijn geïsoleerd met 42mm isolatiewol. Het dak van is standaard niet geïsoleerd, voor een comfortabele leefruimte raden wij aan dit ook te isoleren. Hiervoor bestaat het dak met plafond al uit een dubbele laag met een tussenruimte van 14 cm. Zo kun je gemakkelijk isolatiemateriaal naar keuze installeren. Uiteraard helpen wij je hier ook graag in mee.
Veelzijdig vurenhout
Dit model is volledig gemaakt van onbehandeld vurenhout. Deze houtsoort heeft door zijn langzame groei een fijne vezelstructuur, bevat weinig hars en heeft hooguit kleine, vaste kwasten. We raden sterk aan het hout te bewerken met een beits of lak. Dit zorgt ervoor dat de kleur beter wordt behouden en beschermt tegen vocht en nattigheid om de levensduur te verlengen.
Compleet naar wens aanpasbaar
De Kampas is beschikbaar in een aantal standaard afmetingen. Komen deze afmetingen niet uit voor jouw tuin, wil je een aanpassing maken in de positie van de deur of het dak versterken om er zonnepanelen op te plaatsen? Neem contact op met onze klantenservice of maak een afspraak in ons experience center om de mogelijkheden te bespreken en je droom buitenverblijf samen te stellen.
Premium kwaliteit van Azalp
Bij Azalp draait alles om topkwaliteit. Onze SmartShed tuinhuizen zijn van premium kwaliteit en bieden verschillende mogelijkheden om jouw tuin een upgrade te geven.
We kiezen alleen het beste Noord-Europese vurenhout voor onze blokhutten, waardoor ze niet alleen mooi zijn maar ook duurzaam. Daarnaast zorgt de erg sterke constructie met onder andere verlijmde nokbalken en versterkingen ervoor dat de kans op kromtrekken wordt verminderd. Onze dakconstructies zijn zelfs berekend voor Duitse sneeuwlast, zodat je blokhut bestand is tegen zware weersomstandigheden.
Ook hechten we veel waarde aan aandacht voor detail en maatwerk voor onze klanten. Met meer dan 30 jaar ervaring bieden we producten die gebaseerd zijn op bewezen vakmanschap. Bij Azalp doen we geen concessies aan kwaliteit. Onze premium blokhutten zijn ontworpen om generaties lang mee te gaan en kunnen je extra opslagruimte en een ontspanningsruimte bieden in jouw tuin.
Bouwpakket
De basisconstructie is volledig op maat gemaakt en heeft geen verdere bewerking nodig voor het opbouwen. Omdat de isolatie wanden bestaan uit pre-fab onderdelen is alle isolatie al op maat gemaakt, waardoor het ook nog eens minder werk tijdens installatie is.
Wil je liever niet zelf aan de slag? Dan kunnen de professionals van onze opbouwservice dit voor je verzorgen.
We raden aan op een goede fundering op te bouwen. Dit zorgt voor een stevige ondergrond zodat de constructie niet kan verzakken. Twijfel je of je ook een vergunning nodig hebt? In sommige gevallen is dit niet nodig maar dit verschilt per situatie en gemeente. Wij raden aan om van te voren contact met je gemeente op te nemen en dit te controleren.
| Merk | SmartShed |
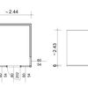
| Breedte | 244 cm |
| Hoogte | 246 cm |
| Oppervlakte | 7 m2 |
| Materiaal | Hout |
| Wanddikte | 93 mm |
| Houtbehandeling | Onbehandeld |
| Dakvorm | Plat |
| Maatwerk mogelijk | |
| Veranda | |
| Afmetingen deur | 90 x 198 cm |
| Deur type | Enkele deur |
| Houtsoort | Vurenhout |
| Levertijd | 8-12 weken |
| Soort dak | Massief |
| Glasdikte | 24 mm |
| Azalp artikelcode | 24-157-0016-0 |
| EAN-code | 1024157001603 |
| Kant klaar geverfd mogelijk | |
| Kunststofglas | |
| Glassoort | Dubbelglas |
| Isolatieglas | |
| Breedte binnenmaat | 238 cm |
| Diepte binnenmaat | 292 cm |
| Dakoppervlakte | 7 m2 27 m2 |
| Aantal deuren | 1 st |
| Aantal ramen | 4 st |
| Afmetingen (bxl) | 244 x 298 cm |
| Materiaal dak | Hout |
| Afmeting raam | 60x54 cm |
| Soort isolatie | Standaard wanden |
![]() Huidige product | ![]() | ![]() | ![]() | |
| Prijs | 6.604,- | 4.454,- | 3.564,- | 5.958,- |
| Dakvorm | Plat | Plat | Plat | Plat |
| Houtsoort | Vurenhout | Vurenhout | Vurenhout | |
| Afmetingen (bxl) | 244 x 298 cm | 242 x 283 cm | 244 x 298 cm | 238x238 cm |
| Soort isolatie | Standaard wanden | Optioneel | Optioneel | Standaard dak |
| Bekijk dit product | Bekijk dit product | Bekijk dit product |
€ 8.609,- 390x350 cm € 10.681,19
€ 9.079,- 350x390 cm € 10.716,49
€ 9.109,- 390x390 cm € 11.328,24
€ 9.629,- 240x200 cm € 6.522,39
€ 5.544,- 240x240 cm € 7.063,54
€ 6.004,- 300x200 cm € 7.204,74
€ 6.124,- 300x240 cm € 7.763,54
€ 6.599,- 240x300 cm € 7.769,44
€ 6.604,- 350x200 cm € 7.987,09
€ 6.789,- 240x350 cm € 8.487,09
€ 7.214,- 390x200 cm € 8.487,09
€ 7.214,- 300x300 cm € 8.498,84
€ 7.224,- 350x240 cm € 8.575,29
€ 7.289,- 390x240 cm € 9.087,09
€ 7.724,- 300x350 cm € 9.251,79
€ 7.864,- 350x300 cm € 9.345,89
€ 7.944,- 300x390 cm € 9.816,49
€ 8.344,- 390x300 cm € 9.875,29
€ 8.394,-














